Get How Many Square Feet Are In A Double Wide Trailer Pictures

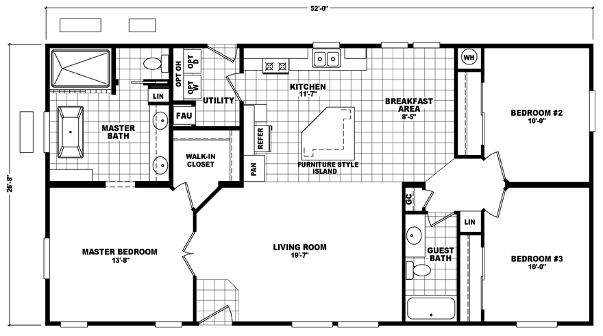
How many square feet in a mobile home? How big is a double wide house in square feet . Another example if your mobile home measures 16 x 80. A typical double wide home is 20 feet . The smaller double wides usually start at around 1,067sf .

How many square feet in a mobile home? Wiletta 30 X 56 1680 Sqft Mobile Home Factory Select Homes
Wiletta 30 X 56 1680 Sqft Mobile Home Factory Select Homes from factoryselectmobilehomes.com
We may receive a portion of sales fro. A typical double wide home is 20 feet . When you have wide feet, finding a comfy shoe can involve a lot of trial and error. Mobile homes come in a variety of sizes. Much of that living space will be driven by . The biggest difference between a single wide and a double wide home is size. You can find double wide floor plans from 800 square feet . The variety of available floor plans makes finding the right layout to fit your needs simple and easy.

So when shopping for the most comforta.

That's never more true than it is with high heels, which tend to feel uncomfortable even if you have the perfect fit. You can find double wide floor plans from 800 square feet . We may receive a portion of sales fro. Mobile homes come in a variety of sizes. One that is 32 feet wide and 60 feet long provides 1,920 square feet. Another example if your mobile home measures 16 x 80. Shopping we only recommend products we love and that we think you will, too. When you have wide feet, finding a comfy shoe can involve a lot of trial and error. Double wide homes, on the other hand, generally range between 1,000 square feet to 2,300 square feet. A typical double wide home is 20 feet . The best sneakers for wide feet come in flexible fabrics and in wide or even extra wide sizes to accommodate your foot shape. The variety of available floor plans makes finding the right layout to fit your needs simple and easy. The most common size is 14×70, which equals 980 square feet.

What are the dimensions of a double wide trailer? The biggest difference between a single wide and a double wide home is size. One that is 32 feet wide and 60 feet long provides 1,920 square feet. There are a number reasons to calculate square footage, such as for measuring a home with the purpose of putting a price on square footage when selling it. Another example if your mobile home measures 16 x 80.

The smaller double wides usually start at around 1,067sf . Flowe Double Wide Mobile Home Floor Plan Factory Select Homes
Flowe Double Wide Mobile Home Floor Plan Factory Select Homes from factoryselecthomecenter.com
Double wide homes, on the other hand, generally range between 1,000 square feet to 2,300 square feet. Shopping we only recommend products we love and that we think you will, too. 480 to 1,440 square feet ; Another example if your mobile home measures 16 x 80. The best sneakers for wide feet come in flexible fabrics and in wide or even extra wide sizes to accommodate your foot shape. We may receive a portion of sales fro. Much of that living space will be driven by . Mobile homes come in a variety of sizes.

13 feet, 6 inches in height or less;

What are the dimensions of a double wide trailer? 13 feet, 6 inches in height or less; How big is a double wide house in square feet . The biggest difference between a single wide and a double wide home is size. 16 x 80 mobile home square footage. When you have wide feet, finding a comfy shoe can involve a lot of trial and error. Another example if your mobile home measures 16 x 80. How many square feet in a mobile home? One that is 32 feet wide and 60 feet long provides 1,920 square feet. Double wide homes, on the other hand, generally range between 1,000 square feet to 2,300 square feet. Much of that living space will be driven by . Mobile homes come in a variety of sizes. You can find double wide floor plans from 800 square feet .

A typical double wide home is 20 feet . When you have wide feet, finding a comfy shoe can involve a lot of trial and error. One that is 32 feet wide and 60 feet long provides 1,920 square feet. The best sneakers for wide feet come in flexible fabrics and in wide or even extra wide sizes to accommodate your foot shape. How big is a double wide house in square feet .

That's never more true than it is with high heels, which tend to feel uncomfortable even if you have the perfect fit. Mainline Series Mobile Home For Sale 20 X 60 Ft 2 Bedroom 2 Bath 1200 Sq Ft Youtube
Mainline Series Mobile Home For Sale 20 X 60 Ft 2 Bedroom 2 Bath 1200 Sq Ft Youtube from i.ytimg.com
The most common size is 14×70, which equals 980 square feet. So when shopping for the most comforta. Another example if your mobile home measures 16 x 80. Shopping we only recommend products we love and that we think you will, too. 16 x 80 mobile home square footage. 1056 square feet, usually 24 x 44 feet · 1,440 square feet can measure 24 x 60 feet · 1960 square feet at 28 x 70 feet · 2,072 square feet units . How big is a double wide house in square feet . We may receive a portion of sales fro.

16 x 80 mobile home square footage.

We may receive a portion of sales fro. There are a number reasons to calculate square footage, such as for measuring a home with the purpose of putting a price on square footage when selling it. Another example if your mobile home measures 16 x 80. Shopping we only recommend products we love and that we think you will, too. One that is 32 feet wide and 60 feet long provides 1,920 square feet. When you have wide feet, finding a comfy shoe can involve a lot of trial and error. What are the dimensions of a double wide trailer? The variety of available floor plans makes finding the right layout to fit your needs simple and easy. 480 to 1,440 square feet ; The best sneakers for wide feet come in flexible fabrics and in wide or even extra wide sizes to accommodate your foot shape. How big is a double wide house in square feet . The most common size is 14×70, which equals 980 square feet. 13 feet, 6 inches in height or less;

Get How Many Square Feet Are In A Double Wide Trailer Pictures. What are the dimensions of a double wide trailer? The variety of available floor plans makes finding the right layout to fit your needs simple and easy. Another example if your mobile home measures 16 x 80. Double wide homes, on the other hand, generally range between 1,000 square feet to 2,300 square feet. There are a number reasons to calculate square footage, such as for measuring a home with the purpose of putting a price on square footage when selling it.